- Obiekt
- adaptacja z rozbudową istniejącego budynku dawnej szkoły na centrum opiekuńczo-mieszkalne rozszerzone o dodatkowe usługi opiekuńcze i medyczne
- Dokładna lokalizacja
- ul. Gajowicka, Wrocław
- Organizator
- Wrocławskie Stowarzyszenie na Rzecz Osób Niepełnosprawnych Intelektualnie „BONITUM”
- Zakres
- projekt koncepcyjny - konkurs
- Autorzy
- Jerzy Adamiczka, Bartosz Adamiczka, Tomasz Broma, Marysia Czarnecka, Dominika Jasińska, Julia Zuba, Matylda Wolff, Ala Anioł, Alicja Smoczyk
- Powierzchnia działki
- 4722 m2
- Powierzchnia
- 2194 m2
- Projekt
- 2023
Zdrowy dom
Gdy tworzyliśmy koncepcję projektową Centrum Usług Środowiskowych kluczową była dla nas chęć stworzenia zdrowego obiektu. Przez zdrowy obiekt rozumiemy miejsce sprzyjające dobrostanowi fizycznemu i psychicznemu oraz takie, gdzie uczestnicy mieliby zapewnione poczucie komfortu i równości. Ponadto miejsce takie dałoby im możliwość stworzenia relacji interpersonalnych.
W myśl projektowania uniwersalnego, chcieliśmy zapewnić wykorzystanie dostępnych w ramach przedsięwzięcia zasobów w sposób optymalny dla towarzyszących mu efektów zewnętrznych. Zminimalizowaliśmy więc, między innymi, koszty środowiskowe, a możliwie zwiększyliśmy korzyści dla samych uczestników.
Prostota zwiększająca dostępność
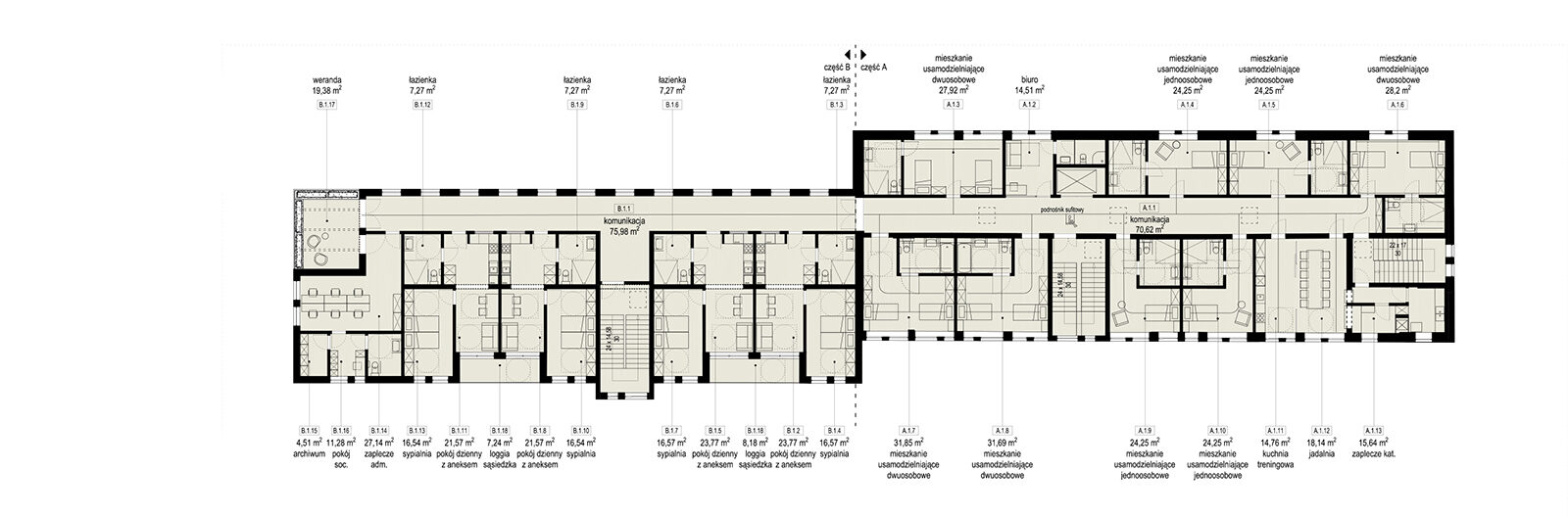
Kwestia dostępności i prostoty obsługi były kluczowe, by stworzyć obiekt spełanijący wymogi wynikające z przeznaczenia obiektu jak i tkanki istniejącego budynku. Całość układu funkcjonalno-przestrzennego oparliśmy o bardzo prosty i czytelny układ komunikacji wewnętrznej, którą zredukowaliśmy do minimum.
Intuicyjny układ linearny, do którego równolegle podłączają się kolejne pomieszczenia, uzupełniliśmy o czytelną i zauważalną informację sensoryczną. Każdy rodzaj przestrzeni o różnym przeznaczeniu i funkcji wyróżniliśmy wizualnie kodem kolorystycznym oraz zróżnicowaniem faktur oddziałujących na zmysł dotyku. Zastosowaliśmy to zarówno w większej jak i mniejszej skali. Zatem dotyczy to nie tylko pomieszczeń, ale też elementów ich wyposażenia, z których korzystają uczestnicy.
Bliskość, relacje jak i wymiary poszczególnych zaprojektowanych przestrzeni umożliwiają ich dostępność i użyteczność. Umożliwia to korzystanie z nich przy minimalnym wysiłku, ale też zwiększa tolerancję na błędy uczestników. Ma to sprawić, że chętniej będą podejmować oni kolejne próby i działania. Całość dopełnia zaplanowane wyposażenie.
Otwarty na przemiany
CUS zaprojektowaliśmy z myślą po zmianach. Oprócz tych w zakresie Inwestycyjnego etapowania realizacji, myśleliśmy też o przemianach samych jego uczestników. Przestrzeń zaprojektowaliśmy w sposób inkluzywny, dzięki czemu sprzyja ona procesowi uspołeczniania. Ponadto pomaga to w zwiększaniu samodzielności w funkcjonowaniu mieszkańców Centrum.
Dzięki elastyczności użytkowej zapewniliśmy możliwość rozwoju i zaplanowanego przekształcania obiektu w czasie – bez negatywnego wpływu na uczestników i funkcjonowanie Centrum. Jednocześnie układ każdej z części obiektu traktować może kolejne etapy w sposób otwarty – pozostawiając możliwość nieprzewidzianych wcześniej zmian.
Green city
Myśląc o tworzeniu środowiska społecznego, nierozerwalnym aspektem było dla nas stworzenie przyjaznego i symbiotycznie funkcjonującego środowiska naturalnego obiektu. Zastosowane rozwiązania: ochrona zastanej roslinności, zielone dachy, schronienia dla zwierząt i dosadzanie rodzimych gatunków poprawiają mikroklimat miejsca oraz wspierają bioróżnorodność.
Zieleń otaczająca budynek zbliżona została przez nas do samego budynku w obrębie pergoli, werand oraz towarzyszących im donic. Co więcej zieleń pełni również funkcję aktywizującą uczestników – zaprojektowany ogród prywatny z rabatami, mikro uprawami, szklarnią uzupełnia ścieżka sensoryczna oraz miejsca do relaksu i odpoczynku.
Nie pasywny, ale Energoatywny
Równolegle do kwestii środowiska społecznego, wizję CUS uzupełnia wrażliwość na aspekty środowiskowe naturalne. Myśląc o redukcji negatywnego wpływu w tym zakresie przewidzieliśmy rozwiązania zapewniające energoaktywny sposób funkcjonowania obiektu.
Wszystkie pomieszczenia przeznaczone dla uczestników lub pracowników doświetlilismy bezpośrednim światłem słonecznym rozproszonym częściowo przez zieleń i pergolę. Ponadto wykorzystaliśmy systemy przesłon lub podwójnych elewacji. Miejsca w części centralnej budynku doświetlono światłem rozproszonym górnym. Dodatkowo wielkość przeszkleń jak i ich lokalizacja zapewnia zyski solarne. Energia elektryczna pozyskiwana jest z paneli fotowoltaicznych, a nadmiar energii przeznaczyliśmy do ładowania rowerów elektrycznych lub zbierana jest w magazynie energii. Dodatkowo oświetlenie led zmniejsza zapotrzebowanie na energię.
System recyklingu i magazynowania wody deszczowej zmniejsza zapotrzebowanie obiektu na wodę z sieci i przyczynia się do zapewnienia racjonalnego gospodarowania wodami opadowymi.
Wentylacja mechaniczna z rekuperacją oraz wysoka izolacyjność przegród budowlanych nie tylko spełniają standardy dla tego typu współczesnych obiektów, ale też zapewniają wysoką energoefektywność budynku. Ogrzewanie wykorzystuje ciepło miejskie stanowiące najprostsze i obecnie najekonomiczniejsze w obsłudze rozwiązanie.
Jednocześnie proponowane rozwiązania oparto o standardowe systemy, nie wymagające skomplikowanej obsługi oraz ponadstandardowego wyposażenia technicznego.
Forma i materiały
Forma budynku bezpośrednio wynika z powyższych uwarunkowań – w tym bardzo czytelnego i prostego układu funkcjonalno-przestrzennego. Układ części A budynku w sposób maksymalny szanuje i dostosowuje się do zastanej tkanki istniejącego budynku. Jednocześnie formalnie, podział materiałowy i formalny bryły pomiędzy kondygnacjami odpowiada ich różnemu charakterowi funkcjonalnemu – otwarty i dostępny parter oraz prywatna strefa piętra.
Wykorzystanie istniejącego i nieużywanego już obiektu wpisuję się silnie w nurt C2C („cradle to cradle”) oraz zasad Miasta cyrkularnego. Idąc tym tropem zdecydowaliśmy się na wykorzystanie prostych, dostępnych materiałów – mogących pochodzić z recyklingu lub też mogących poddać się późniejszemu recyklingowi oraz materiałów o ujemnym śladzie i prefabrykowanych.
Usytuowanie przestrzenne i komunikacja
Obiekt wpasowaliśmy optymalnie w pasmowy układ terenu miasta. Zabudowie podlega możliwie minimalna powierzchnia terenu, a utwardzenie terenu maksymalnie ograniczyliśmy. Po przekształceniu, struktura maluje się w przestrzeni jako obiekt zatopiony w zieleni.
Etapowanie Inwestycji zakłada realizację układu komunikacyjnego w pierwszym etapie bez konieczności jego modyfikacji w kolejnych etapach co również redukuje koszty całego przedsięwzięcia.

















